Contact Karin
17a Keats Street, Byron Bay, NSW, 2481 Byron Bay NSW
4 3 2 1107sqm House

Property Description —

Expansive 1,107sqm Block with Development Potential, walk to town

Perfectly positioned in a convenient location close to town, this beautifully renovated home combines modern comfort with space, functionality, and exciting future potential. Set on a generous 1,107sqm elevated block that captures gentle breezes, it offers relaxed living just minutes from Byron's vibrant centre, beaches, and local schools.

The spacious layout includes four bedrooms and three bathrooms, including a private main suite with ensuite. Original hardwood timber floors and high ceilings with decorative feature cornices bring timeless character, while the open-plan design creates an inviting sense of flow throughout the home.

At the heart of the property, the stylish kitchen features stainless steel appliances, ample storage, and a breakfast bar overlooking the open living and dining zones - ideal for both entertaining and everyday family life. A fully screened, versatile sunroom adds even more space, perfect as a rumpus, games room, or second living area.

Outdoors, the huge backyard provides plenty of room for kids and pets to play, with potential to further enhance or extend as desired.

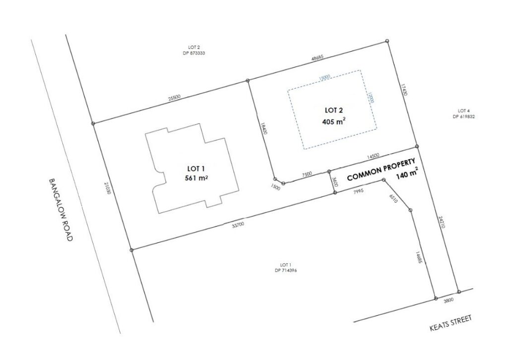
This property also comes with previously approved subdivision and architectural home plans, which only recently lapsed in August 2025. With engineering plans already completed, there is potential to resubmit to council and proceed with the development of a second 4-bedroom, 2-bathroom home with pool.

Property Features:

- Expansive 1,107sqm elevated block capturing gentle breezes

- Renovated four-bedroom, three-bathroom home ready to move straight in

- High ceilings with decorative feature cornices and original hardwood timber floors

- Spacious, open-plan layout with air-conditioning

- Multiple living areas

- Fully screened sunroom or rumpus room

- Huge backyard - perfect for children and families

- Double garage and quiet cul-de-sac access off Keats Street

- Convenient location close to town

- Walk to schools, The General Store, Woolworths, cafes, and restaurants

- Quick e-bike ride to Byron Bay's beautiful beaches

A rare Byron Bay opportunity offering space, lifestyle, and the potential to expand or develop in the future.


Disclaimer: All information contained herein is obtained from property owners or third-party sources which we believe are reliable. We have no reason to doubt its accuracy, however we cannot guarantee it. All interested person/s should rely on their own enquiries.

Floorplans —

Floorplan Floorplan

Enquiries —

I'd like to enquire about 17a Keats Street, Byron Bay, NSW, 2481 Byron Bay NSW